Schöne 1,5 Zimmerwohnung zur Miete in Barmbek – Wentzel Dr.

Objekt-ID 1227.0008

Auf einen Blick

Standort
22307 Hamburg
Adresse
Lorichsstr. 43
Etage
3
Wohnfläche
ca. 39,38 m²
Anzahl Zimmer
1,5
Kaltmiete (netto)
467,44 €
Gesamtmiete
646,44 €
Nebenkosten
179 €
Heizkosten
in Nebenkosten enthalten
Heizkosten
84 €
Mietpreis/m²
11,87 €
Kaution
1.402,32 €

62 Wohneinheiten in Barmbek-Nord verbinden zentrale Stadtlage mit einer grünen, ruhigen Umgebung. Das Haus stammt aus dem Baujahr 1936 und bietet gepflegte Wohnräume. Dank attraktiver Infrastruktur sind Einkaufsmöglichkeiten, Schulen und Kindergärten in unmittelbarer Nähe, und eine gute Anbindung an den öffentlichen Nahverkehr erleichtert den Alltag.

Flächen

Wohnfläche
ca. 39,38 m²
Anzahl Zimmer
1,5

Ausstattung

Dusche
Einbauküche

Energie & Heizung

Baujahr1936
EnergieausweisVerfügbar
Energie­ausweistypVerbrauchsausweis
Erstellt am19.04.2018
Endenergieverbrauch189 kWh/(m²·a)
Heizwärmebedarf KlasseF
HeizungsartFernwärme
A+
A
B
C
D
E
F
G
H

Objekt & Status

Bezugsfrei ab
01.05.2026
Baujahr
1936

Ausstattung

Die Küche ist ausgestattet mit Herd und Spüle. Das halbe Zimmer ist von der Küche begehbar und ideal als Esszimmer nutzbar. Ein Duschbad ist vorhanden. Die Beheizung erfolgt über Fernwärme.

Mehr anzeigenWeniger anzeigen

Lagebeschreibung

Zuhause in Barmbek. Der Stadtteil liegt im Nordosten Hamburgs und unterteilt sich in Barmbek-Nord und Barmbek-Süd. Umgeben von Stadtteilen wie Dulsberg, Winterhude oder Alsterdorf zählt Barmbek zum Bezirk Hamburg-Nord.

Die städtebauliche Struktur zeichnet sich besonders durch Rotklinkerbauten mit Miet- und Eigen-tumswohnungen aus. Der Wohnungsneubau der letzten Jahre in der Umgebung, wie das Projekt Wohnen am Harvestehuder Weg, hat das familien- wie seniorenfreundliche Barmbek zu einem Magneten für Wohnungssuchende werden lassen. Kein Wunder bei der Lage!

Barmbek ist perfekt vernetzt: Dafür sorgt u.A. der Anschluss an die U3, S1, S11 und an die S31 mit der gleichnamigen Haltestelle. So sind es in die Hamburger Innenstadt lediglich 15 Minuten mit den öffentlichen Verkehrsmitteln. Auch der Fernverkehr am Hauptbahnhof bietet u.a. verlockende Ausflüge ins umliegende Grün von Hamburgs Speckgürtel. Einkäufe für den täglichen Bedarf sowie Post, Banken, Cafés und Freizeiteinrichtungen befinden sich in Laufentfernung. Das Einkaufszent-rum Hamburger Meile in den Mundsburg-Türmen bietet ein zahlreiches Angebot an Einkaufsmög-lichkeiten sowie ein ausgedehntes Shopping-Erlebnis. Barmbek-Süd und Barmbek-Nord hat viel zu bieten. Die Fuhlsbüttler Straße liegt sehr zentral und ist ebenfalls eine beliebte Einkaufsstraße.

Nahe gelegene Kindergärten, Grund- und weiterführende Schulen sowie Ärzte und Apotheken er-leichtern den Alltag enorm. Die unschlagbare Nähe zum Stadtpark, mit Zugang zur großflächigen Liegewiese mit Sport und Spaß, die Jung und Alt zu Outdoor-Aktivitäten oder einfach nur zum Ent-spannen einladen, sowie Baden im Naturbad und Stadtpark-Konzerte, machen den Stadtteil aus. Dem Park fehlt es an nichts und das schätzen seine Bewohner und Besucher sehr. Doch auch kultu-rell trumpft der Stadtteil und bietet kulturelle Einrichtungen wie die Zinnschmelze und das Muse-um der Arbeit, das definitiv ein Besuch wert ist. Unsere Empfehlung: Die Bartholomäus-Therme, indem der Traum von erholsamen Stunden im Wasser fern vom Stadttrubel, wahr wird.

Mehr anzeigenWeniger anzeigen

Sonstige Angaben

Bei Mietvertragsabschluss wird ein Kündigungsausschluss von einem Jahr und eine Indexmiete vereinbart.

Mehr anzeigenWeniger anzeigen

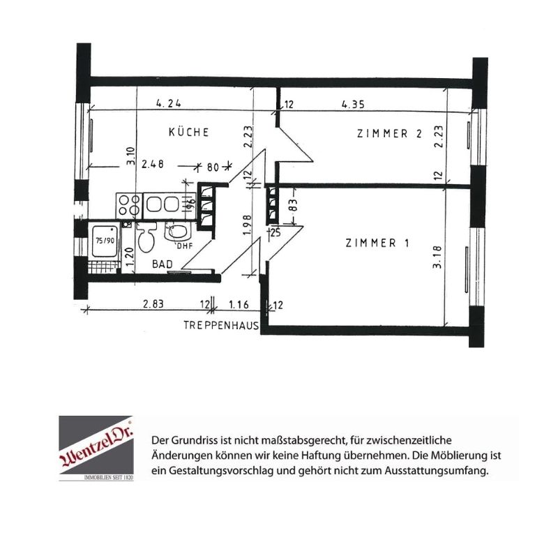
Grundrisse

Immobilie anfragen:

Termin Buchen

Buchen Sie jetzt Ihren Termin bei Wentzel Dr. – einfach und unkompliziert.

Rückruf anfordern

Ihr einfacher und unverbindlicher Kontakt zu uns. Füllen Sie bitte die nachfolgenden Felder aus und lassen Sie sich ganz bequem von uns anrufen