Dieser Bungalow wurde ursprünglich ca. 1938 errichtet und bis 1968 durch einen großzügigen, voll unterkellerten Anbau erweitert. Das Haus verbindet ebenerdiges Wohnen mit einem großzügigen Grundstück von 771 m² und einem klar gegliederten Grundriss. Das Gebäude ist stark modernisierungsbedürftig.
Auf rund 97 m² Wohnfläche verteilen sich drei Zimmer, die sich angenehm voneinander absetzen und zugleich kurze Wege ermöglichen. Der Eingangsbereich führt in eine zentrale Diele, von der aus die Räume übersichtlich erschlossen werden.
Den Mittelpunkt bildet der großzügige Wohn- und Essbereich mit großen Fensterflächen und Terrassenzugang, wodurch viel Tageslicht und ein offenes Raumgefühl entstehen. Die Proportionen wirken ruhig und ausgewogen, sodass sowohl eine klassische Wohnlandschaft als auch ein großzügiger Essplatz stimmig Platz finden.
Die Küche ist separat angeordnet und bietet eine funktionale Arbeitszeile sowie Raum für einen Esstisch im Alltag. Das Schlafzimmer liegt angenehm zurückgezogen, während ein weiteres Zimmer flexibel als Arbeits-, Gäste- oder Hobbybereich genutzt werden kann.
Das Badezimmer ist hell gefliest und mit einer Dusche ausgestattet, ein Fenster sorgt für natürliche Belichtung und Lüftung.
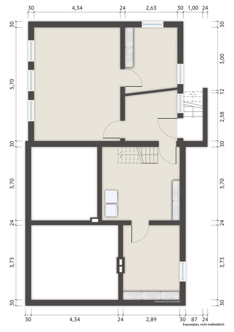
Im Keller des Hauses stehen neben einem Duschbad und einem wohnlich ausgebauten Raum noch praktische Abstellflächen zur Verfügung.
Im Außenbereich rahmt der Garten das Haus mit viel Freiraum, während die Terrasse als naheliegende Verlängerung des Wohnbereichs wirkt. Eine Garage ergänzt das Angebot und unterstützt den komfortablen Alltag.
Insgesamt präsentiert sich die Immobilie als solide Basis mit klarer Architektur, großzügigem Grundstück und einem Wohnkonzept, das sowohl heute als auch perspektivisch gut mitwachsen kann.
Das Gebäude ist stark modernisierungsbedürftig. Weitere Informationen hierzu erhalten Sie gern telefonisch oder bei einer Besichtigung.


















