Moderne Wohnung zur Miete in Hamburg-Barmbek-Wentzel-Dr.

Objekt-ID 1494.0042

Auf einen Blick

Standort
22307 Hamburg
Adresse
Stöttrupweg 4
Etage
2
Wohnfläche
ca. 70,80 m²
Anzahl Zimmer
3
Anzahl Balkon / Terrasse
1
Kaltmiete (netto)
802 €
Gesamtmiete
1.024 €
Nebenkosten
222 €
Heizkosten
in Nebenkosten enthalten
Heizkosten
57 €
Mietpreis/m²
11,33 €
Kaution
2.406 €

Die Wohnung befindet sich in einem Wohnhaus aus dem Jahre 1997. Das Haus verfügt über eine Tiefgarage und einen schön angelegten Hinterhof.

Flächen

Wohnfläche
ca. 70,80 m²
Anzahl Zimmer
3
Anzahl Balkon / Terrasse
1

Ausstattung

Balkon
Bad mit Badewanne
Einbauküche
Fliesen
Keller

Energie & Heizung

Baujahr laut Energieausweis1997
Energieausweisliegt vor
Energie­ausweistypVerbrauchsausweis
Erstellt am28.10.2019
Endenergieverbrauch80 kWh/(m²·a)
PrimärenergieträgerFernwärme
Heizwärmebedarf KlasseC
HeizungsartFernwärme
A+
A
B
C
D
E
F
G
H

Objekt & Status

Verfügbar ab
01.04.2026
Baujahr
1997
Zustand
Gepflegt

Ausstattung

Diese geräumige Wohnung befindet sich in ruhiger und zentraler Lage in Barmbek-Nord. Die seperate Küche ist mit einer Einbauküchenzeile ausgestattet. Der Wohnbereich verfügt vermieterseits über Parkettboden. Das Vollbad verfügt über ein Fenster sowie einen Waschmaschinenanschluss. Der Balkon ist ruhig und rückwärtig zum Hinterhof gelegen. Ein Kellerraum bietet weitere Abstellmöglichkeiten. In der Miete sind bereits alle Nebenkosten außer Strom enthalten.

Mehr anzeigenWeniger anzeigen

Lagebeschreibung

Zuhause in Barmbek. Der Stadtteil liegt im Nordosten Hamburgs und unterteilt sich in Barmbek-Nord und Barmbek-Süd. Umgeben von Stadtteilen wie Dulsberg, Winterhude oder Alsterdorf zählt Barmbek zum Bezirk Hamburg-Nord.

Die städtebauliche Struktur zeichnet sich besonders durch Rotklinkerbauten mit Miet- und Eigen-tumswohnungen aus. Der Wohnungsneubau der letzten Jahre in der Umgebung, wie das Projekt Wohnen am Harvestehuder Weg, hat das familien- wie seniorenfreundliche Barmbek zu einem Magneten für Wohnungssuchende werden lassen. Kein Wunder bei der Lage!

Barmbek ist perfekt vernetzt: Dafür sorgt u.A. der Anschluss an die U3, S1, S11 und an die S31 mit der gleichnamigen Haltestelle. So sind es in die Hamburger Innenstadt lediglich 15 Minuten mit den öffentlichen Verkehrsmitteln. Auch der Fernverkehr am Hauptbahnhof bietet u.a. verlockende Ausflüge ins umliegende Grün von Hamburgs Speckgürtel. Einkäufe für den täglichen Bedarf sowie Post, Banken, Cafés und Freizeiteinrichtungen befinden sich in Laufentfernung. Das Einkaufszent-rum Hamburger Meile in den Mundsburg-Türmen bietet ein zahlreiches Angebot an Einkaufsmög-lichkeiten sowie ein ausgedehntes Shopping-Erlebnis. Barmbek-Süd und Barmbek-Nord hat viel zu bieten. Die Fuhlsbüttler Straße liegt sehr zentral und ist ebenfalls eine beliebte Einkaufsstraße.

Nahe gelegene Kindergärten, Grund- und weiterführende Schulen sowie Ärzte und Apotheken er-leichtern den Alltag enorm. Die unschlagbare Nähe zum Stadtpark, mit Zugang zur großflächigen Liegewiese mit Sport und Spaß, die Jung und Alt zu Outdoor-Aktivitäten oder einfach nur zum Ent-spannen einladen, sowie Baden im Naturbad und Stadtpark-Konzerte, machen den Stadtteil aus. Dem Park fehlt es an nichts und das schätzen seine Bewohner und Besucher sehr. Doch auch kultu-rell trumpft der Stadtteil und bietet kulturelle Einrichtungen wie die Zinnschmelze und das Muse-um der Arbeit, das definitiv ein Besuch wert ist. Unsere Empfehlung: Die Bartholomäus-Therme, indem der Traum von erholsamen Stunden im Wasser fern vom Stadttrubel, wahr wird.

Mehr anzeigenWeniger anzeigen

Sonstige Angaben

Es wird eine Indexmiete und ein Kündigungsausschluss von 1 Jahr vereinbart.

Mehr anzeigenWeniger anzeigen

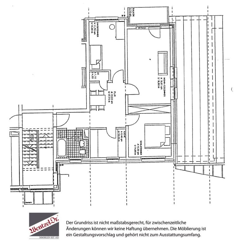
Grundrisse

Immobilie anfragen:

Termin Buchen

Buchen Sie jetzt Ihren Termin bei Wentzel Dr. – einfach und unkompliziert.

Rückruf anfordern

Ihr einfacher und unverbindlicher Kontakt zu uns. Füllen Sie bitte die nachfolgenden Felder aus und lassen Sie sich ganz bequem von uns anrufen