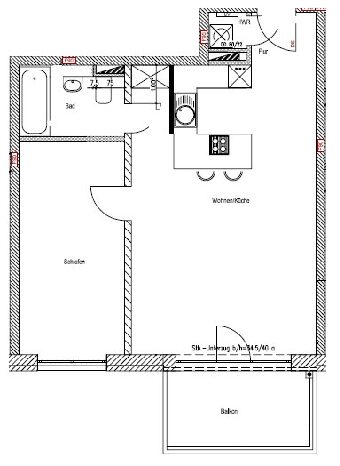
Diese 2-Raum-Wohnung im angesagten Leipziger Stadtteil Connewitz bietet auf ca. 65 m² Wohnfläche höchsten Wohnkomfort in einem modernen Gebäude aus dem Jahr 2017. Die Wohnung ist ideal für die, die das urbane Leben in einem der beliebtesten Viertel Leipzigs genießen möchten. Der im Gebäude vorhandene Aufzug, der bis in den Keller fährt, sorgt für einen barrierearmen Zugang zu allen Etagen und somit auch zur Wohnung. Über den Flur gelangen Sie in das Herzstück der Wohnung, die helle Wohnküche. Von hier aus wird Ihnen ein direkter Zugang zum gemütlichen Balkon geboten, welcher zum Entspannen und Genießen einlädt. Die moderne Einbauküche ist gut ausgestattet und verfügt über alle nötigen Elektrogeräte. Für weiteren Stauraum sorgt ein Abstellraum innerhalb der Wohnung.
Das Schlafzimmer verfügt über ein großes bodentiefes Fenster, welches für viel Tageslicht sorgt und eine angenehme Atmosphäre schafft. Das elegante und zeitlos gestaltete Badezimmer ist mit mit einer Badewanne ausgestattet.
Zur Wohnung gehört außerdem ein Kellerabteil. Sie haben die Möglichkeit, einen Tiefgaragen- oder Außenstellplatz zusätzlich anzumieten.
Zögern Sie nicht und stellen Sie heute Ihre Online-Anfrage!



