Die im Jahr 2020 errichtete Wohnanlage steht für modernes, komfortables Mietwohnen in nachhaltiger KfW-Effizienzhaus-55-Bauweise. In einem harmonisch gestalteten Ensemble verteilen sich 76 hochwertige 1- bis 4-Zimmer-Mietwohnungen auf fünf übersichtlich angelegte Hauseingänge und bieten ein angenehmes, nachbarschaftliches Wohnumfeld.
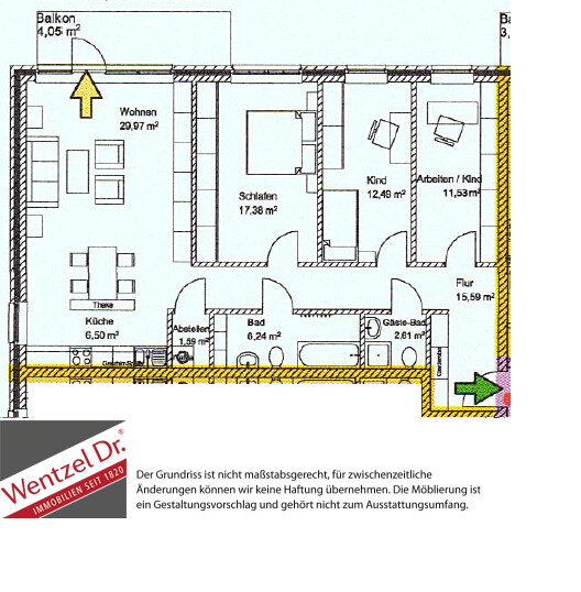
Die Wohnungen überzeugen durch großzügige, gut durchdachte Grundrisse, helle Wohnräume und ein zeitgemäßes Wohnkonzept, das den Bedürfnissen von Familien, Paaren und Berufstätigen gleichermaßen gerecht wird. Große Fensterflächen sorgen für eine freundliche Atmosphäre und ein hohes Maß an Wohnqualität im Alltag.
Architektonisch setzt die Wohnanlage mit ihrer klassisch norddeutsch verklinkerten Fassade ein klares Zeichen für Wertigkeit und Beständigkeit. Die langlebige Bauweise verleiht dem Objekt eine zeitlose Ausstrahlung und fügt sich harmonisch in das gewachsene Umfeld ein.
Für zusätzlichen Komfort im täglichen Leben stehen den Mietern insgesamt 98 Stellplätze zur Verfügung, darunter 48 Außenstellplätze sowie 50 Stellplätze in der Tiefgarage. Moderne Gebäudetechnik und die energieeffiziente Bauweise tragen zu einem angenehmen Wohnklima und dauerhaft niedrigen Nebenkosten bei.








