Helle 3-Raum-Wohnung im DG zur Miete in Leipzig Connewitz – Wentzel Dr.

Objekt-ID 8715.0120

Auf einen Blick

Standort
04277 Leipzig
Adresse
Kochstraße 122
Wohnfläche
ca. 78,66 m²
Anzahl Zimmer
3
Anzahl Terrassen
1
Kaltmiete (netto)
1.073,57 €
Gesamtmiete
1.353,57 €
Nebenkosten
280 €
Heizkosten
in Nebenkosten enthalten
Heizkosten
108 €
Mietpreis/m²
13,65 €
Kaution
3.220,71 €

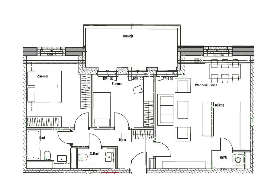
Diese gut geschnittene Wohnung überzeugt durch eine durchdachte Raumaufteilung und ein angenehmes Wohnambiente. Über die zentrale Diele sind alle Räume bequem erreichbar, wodurch eine klare und funktionale Struktur entsteht.
Der großzügige Wohn- und Essbereich bildet das Herzstück der Wohnung und bietet viel Platz für gemeinsames Wohnen und Leben. Große Fensterflächen sorgen in allen Räumen für reichlich Tageslicht und eine freundliche Atmosphäre.
Neben dem Wohnbereich stehen mehrere flexibel nutzbare Zimmer zur Verfügung, die sich ideal als Schlaf-, Kinder-, Gäste- oder Arbeitszimmer eignen. Ein besonderes Highlight: Vom möglichen Kinderzimmer aus besteht ebenfalls ein direkter Zugang zum Balkon – ideal für Familien und für zusätzlichen Wohnkomfort.
Die Küchenzeile ist funktional geschnitten, bietet ausreichend Platz und ist Bestandteil der Mietsache.
Das Badezimmer ist modern ausgestattet und verfügt über eine Badewanne. Ein zusätzliches Gäste-WC sorgt für weiteren Komfort im Alltag.
Ein Hauswirtschaftsraum innerhalb der Wohnung bietet praktischen Stauraum sowie Platz für Waschmaschine und Haushaltsgeräte. Ergänzend stehen ein Kellerabteil und weitere Abstellflächen zur Verfügung.
Ein besonderes Komfortmerkmal sind die elektrischen Rollläden an sämtlichen Fenstern, die für optimalen Sicht- und Sonnenschutz sowie zusätzliche Sicherheit sorgen.
Die Wohnung ist bequem über einen Aufzug erreichbar, und es besteht ein barrierearmer Zugang bis in den Keller, was den Wohnkomfort zusätzlich erhöht.
Das Wohnangebot wird durch einen Stellplatz zur Anmietung perfekt abgerundet.
Haben wir Ihr Interesse geweckt?
Dann stellen Sie uns gern eine Online-Anfrage – wir freuen uns auf Sie!

Flächen

Wohnfläche
ca. 78,66 m²
Anzahl Zimmer
3
Anzahl Terrassen
1

Ausstattung

Bad mit Badewanne
Einbauküche
Parkett
Personenaufzug
Keller
Gäste WC

Energie & Heizung

Baujahr laut Energieausweis2017
Energieausweisliegt vor
Energie­ausweistypBedarfsausweis
Erstellt am16.01.2018
PrimärenergieträgerFernwärme
Endenergiebedarf71 kWh/(m²·a)
Heizwärmebedarf KlasseB
HeizungsartFußbodenheizung
A+
A
B
C
D
E
F
G
H

Objekt & Status

Verfügbar ab
01.04.2026
Baujahr
2017

Lagebeschreibung

Connewitz ist ein lebendiger und alternativer Stadtteil im Süden von Leipzig, bekannt für seine kulturelle Vielfalt und seine grüne Umgebung. Dies macht den Stadtteil besonders beliebt bei seinen Bewohnern.
Ihnen wird eine hervorragende Verbindung an den öffentlichen Nahverkehr geboten. Mehrere Straßenbahn- und Buslinien verkehren in unmittelbarer Nähe, sodass das Stadtzentrum und andere Stadtteile Leipzigs schnell und unkompliziert erreichbar sind. Die nächstgelegene Straßenbahnhaltestelle ist etwa fünf Gehminuten entfernt. Ebenso befinden sich mehrere Geschäfte des täglichen Bedarfs in der Nähe. Apotheken, Ärzte, Schulen und Kindergärten sind ebenfalls gut erreichbar.
Connewitz bietet eine Vielzahl an Freizeitmöglichkeiten. Der nahegelegene Auenwald und der Wildpark Leipzig laden zu ausgedehnten Spaziergängen, Joggingrunden und Radtouren ein. Die malerischen Seen der Umgebung, wie der Cospudener See und der Markkleeberger See, sind ebenfalls gut erreichbar und bieten im Sommer ideale Bedingungen für einen Ausgleich zum Alltag. Zahlreiche Cafés, Bars und Restaurants in Connewitz sorgen für ein abwechslungsreiches gastronomisches Angebot.
Insgesamt bietet diese Lage in Leipzig Connewitz eine ideale Kombination aus urbanem Leben, kulturellem Angebot und naturnaher Umgebung, die ein angenehmes Wohnen schafft.
Sie sind interessiert? Vereinbaren Sie gern einen Besichtigungstermin!

Mehr anzeigenWeniger anzeigen

Sonstige Angaben

Eine Indexregelung ist im Vertrag verankert. Es wird ein Kündigungsausschluss von einem Jahr vereinbart.

Mehr anzeigenWeniger anzeigen

Grundrisse

Immobilie anfragen:

Termin Buchen

Buchen Sie jetzt Ihren Termin bei Wentzel Dr. – einfach und unkompliziert.

Rückruf anfordern

Ihr einfacher und unverbindlicher Kontakt zu uns. Füllen Sie bitte die nachfolgenden Felder aus und lassen Sie sich ganz bequem von uns anrufen