Charmantes Reihenendhaus mit ausgebautem Dachgeschoss in Heiligenhafen – Wentzel Dr.

Objekt-ID W-K-AB-26-011-1_2

Auf einen Blick

Standort
23774 Heiligenhafen
Wohnfläche
ca. 80 m²
Nutzfläche
ca. 40 m²
Grundstück
ca. 186 m²
Anzahl Zimmer
3
Anzahl Badezimmer
1
Anzahl separater WCs
2
Anzahl Terrassen
1
Balkon-/Terrassenbereich
ca. 12 m²
Anzahl Stellplätze
1
Kaufpreis
270.000 €
Käuferprovision
3,57 % inkl. MwSt.

In ruhiger Wohnlage der beliebten Ostseestadt Heiligenhafen präsentiert sich dieses gepflegte Reihenendhaus aus ca. 1977 als ideales Zuhause für Paare oder Familien mit Platzbedarf. Auf einer Wohnfläche von ca. 80 m² und einem Grundstück von ca. 186 m² bietet die Immobilie eine durchdachte Raumaufteilung mit insgesamt 3 Zimmern (5 Räumen inklusive ausgebautem Dachgeschoss).

Erdgeschoss – Wohnen mit Gartenanschluss:
Das Erdgeschoss empfängt Sie mit einer geschlossenen Küche, die mit einer modernen Einbauküche der Marke Nolte Küchen aus dem Jahr 2021 ausgestattet ist. Die praktische Durchreiche verbindet Küche und Essbereich auf charmante Weise und sorgt für kurze Wege im Alltag. Ein Gäste-WC sowie der helle Wohn- und Essbereich schließen sich an. Von hier aus gelangen Sie direkt auf die Terrasse und in den Garten – ideal für entspannte Stunden im Freien, Grillabende oder spielende Kinder.

Obergeschoss – Rückzugsorte und flexible Nutzung:
Im 1. Obergeschoss befinden sich ein Schlafzimmer sowie ein modern ausgestattetes Duschbad (2021 Modernisiert) mit großzügiger Walk-In-Dusche. Ein weiterer, großzügiger Bereich wird derzeit als Homeoffice und Spielbereich genutzt und bietet flexible Gestaltungsmöglichkeiten – ob Arbeitszimmer, Leseecke oder zusätzlicher Wohnraum.

Dachgeschoss – Zusätzliche Nutzfläche mit Wohncharakter:
Das nachträglich zu wohnlichen Zwecken ausgebaute Dachgeschoss (weiterhin als Nutzfläche deklariert) beherbergt zwei Räume, die aktuell als Kinderzimmer genutzt werden. Diese Ebene schafft wertvolle zusätzliche Fläche und vielfältige Nutzungsmöglichkeiten.

Kellergeschoss:
Die Immobilie ist teilunterkellert. Im Kellerbereich zeigt sich Feuchtigkeit, was bei der weiteren Planung berücksichtigt werden sollte.

Flächen

Wohnfläche
ca. 80 m²
Nutzfläche
ca. 40 m²
Grundstück
ca. 186 m²
Anzahl Zimmer
3
Anzahl Badezimmer
1
Anzahl separater WCs
2
Anzahl Terrassen
1
Balkon-/Terrassenbereich
ca. 12 m²
Anzahl Stellplätze
1

Ausstattung

Stellplatz
Einbauküche
Fliesen
Kunststoff
Bauweise

Energie & Heizung

Baujahr1977
EnergieausweisVerfügbar
Energie­ausweistypBedarfsausweis
Gültig bis12.06.2030
PrimärenergieträgerGas
Energieeffizienz KlasseF
Endenergiebedarf197,5 kWh/(m²·a)
A+
A
B
C
D
E
F
G
H

Objekt & Status

Bezugsfrei ab
nach Vereinbarung
Baujahr
1977
Zustand
Teil/Vollrenoviert
Verfügbarkeit
Verfügbar

Ausstattung

Weitere Ausstattungsmerkmale:
• Gastherme aus dem Jahr 2013
• Eigener Stellplatz direkt neben dem Haus
• Zugang zum Stellplatz auch bequem über den Garten möglich
• Reihenendhauslage

Fazit:
Dieses Reihenendhaus überzeugt durch seine familienfreundliche Aufteilung, den ausgebauten Dachbereich sowie die attraktive Lage in Heiligenhafen nahe der Ostsee. Ein wunderbares Zuhause mit Garten und Stellplatz.

Weitere Informationen erhalten Sie gern telefonisch oder bei einer Besichtigung.

Mehr anzeigenWeniger anzeigen

Lagebeschreibung

Die Immobilie befindet sich in der charmanten Kleinstadt Heiligenhafen. Die Umgebung zeichnet sich durch eine angenehme Mischung aus naturnaher Umgebung und urbanem Komfort aus.
In unmittelbarer Nähe finden Sie zahlreiche Einkaufsmöglichkeiten, die das tägliche Leben bequem machen. Aber auch diverse Restaurants und Cafés befinden sich in Heiligenhafen, sodass hier bestens versorgt sind. Die gute Anbindung an den öffentlichen Nahverkehr sowie die Nähe zu den wichtigsten Verkehrswegen ermöglichen eine schnelle Erreichbarkeit der umliegenden Städte und Sehenswürdigkeiten.

Die Lage bietet zudem eine hervorragende Infrastruktur mit Schulen und Kindergärten. Für Naturliebhaber und Erholungssuchende ist die Nähe zur Ostsee ideal: Der Strand und die schöne Küstenlandschaft lädt zu Spaziergängen, Radfahrten und Wassersport ein. Ob Sie die Ruhe der Natur suchen oder das lebendige Treiben der Stadt genießen möchten – die Lage in Heiligenhafen bietet für jeden das Richtige.

Mehr anzeigenWeniger anzeigen

Sonstige Angaben

Immobilienbewertung:

Sie möchten Ihre aktuelle Immobilie verkaufen und sind bereits auf der Suche nach etwas Neuem? Dann lassen Sie uns gemeinsam den nächsten Schritt gehen. Wir von Wentzel Dr. bewerten Ihr Zuhause kostenlos und unverbindlich – direkt bei Ihnen vor Ort oder am Telefon.

Finanzierung:

Um bestmöglich auf Ihren bevorstehenden Kauf vorbereitet zu sein, empfehlen wir Ihnen, auch die passende Finanzierung im Blick zu behalten. Gern unterstütze wir Sie dabei und bieten Ihnen mit unseren starken Partnern maßgeschneiderte Lösungen, die Ihre Wünsche und finanziellen Möglichkeiten berücksichtigen.

Sprechen Sie unseren Berater unter den angegebenen Kontaktdaten gerne an!

Mehr anzeigenWeniger anzeigen

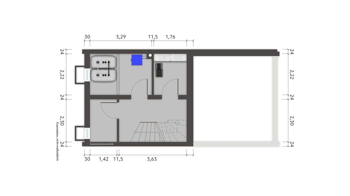
Grundrisse

Immobilie anfragen:

Termin Buchen

Buchen Sie jetzt Ihren Termin bei Wentzel Dr. – einfach und unkompliziert.

Rückruf anfordern

Ihr einfacher und unverbindlicher Kontakt zu uns. Füllen Sie bitte die nachfolgenden Felder aus und lassen Sie sich ganz bequem von uns anrufen